Travaux sommatifs : Module 1

Module :

DOSSIER :   132  - 133

 

LOGICIEL warmaths  ;   Pour Aide et  Formation Individualisée   ;  REMEDIATION   mise à /NIVEAU : niveau VI

Info conseils et consignes.

 

TRAVAUX NORMATIFS PRIMAIRE / COLLEGE / LYCEE

Matière : MATHEMATIQUES.        Niveau   VI

 

 

INFO

Doc WR       Info @ cours „carrelage“ .        Info @ cours „carrelage“ Info @ cours „carrelage“

 

Les questions relatives à « ce qu’il faut retenir » , au  « savoir » se reporter aux cours .

 

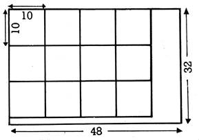
INFO COURS :Ce dossier est utile pour comprendre comment on  pourrait procéder pour  évaluer l’aire d’une surface avec des carreaux de 1 m ou 1dm ou 1 cm de côté.

Dans les découpages et les carrelages, on ne tient pas compte des surfaces à découper ou carreler, mais des dimensions à utiliser.

 

Examinez la figure ci-contre si, dans  la surface représentée, qui mesure15,36 dm2, on veut prendre ou placer   des carreaux de 1  dm2, on ne peut en prendre ou placer que « 12 » , à cause des dimensions du rectangle, et des carreaux indéformables.

 

Les découpages entraînent souvent des chutes, ou pertes de matière.

Les carrelages laissent souvent des parties à couvrir avec des morceaux.

Un conseil avant de calculer, faites un croquis du problème posé.

 

 

TRAVAUX : EVALUATION

1. Dans une feuille de carton de 90 cm de long et 45 cm de large, on découpe des carrés de 20 cm de côté :

 

·        Combien compte –t –on de carrés  sur la longueur ?

·        sur la largeur?

·        en tout ?

 

2. Dans une feuille de verre de 1,90 m de long et 62 cm de large, on découpe des vitres carrées de 30 cm de côté.

·        Combien en a-t-on en long?

·        en large ?

·        en tout ?

 

3 Un vitrier découpe des vitres carrées de 25 cm de côté dans des feuilles de verre de 1,80 m sur 50 cm. Combien en découpe-t-il par feuille ? Il doit garnir les 6 fenêtres d’une maison neuve, chaque fenêtre- comptant 20 vitres. Combien de feuilles de verre devra-t-il découper ?

 

4 . Dans une bande de tôle de 40 cm de large, une   machine découpe, pour fabriquer des boîtes,  des cercles de 8 cm de diamètre. Quelle longueur de tôle emploie-t-on pour découper  150 cercles ?

 

 

 

5. Reproduisez le croquis (ci dessous)  de la plaque de verre découpée en vitres égales ; portez-y les dimensions de la plaque; longueur 1,20 m; largeur 80 cm; les dimensions d’une vitre longueur 36 cm; largeur 24 cm. Calculez par différence de surfaces la surface de verre inutilisée (chutes).

 

 

6.  Dessinez une feuille de carte (carton léger) du modèle standard 45 cm sur 32 cm. Cherchez, sur le croquis, la manière la plus avantageuse d’en tirer des fiches de 15 cm sur 10 cm. Combien peut-on en tirer, par la meilleure combinaison?

 

 

7. Combien peut-on tirer de carreaux de 24 cm de côté d’une feuille de matière plastique de 1,8 m de long et 75 cm de large?

Pour répondre à cette question, un élève divise la surface de la feuille par la surface d’un carreau. Combien trouve-t-il de carreaux ? Expliquez son erreur.

 

8. Un maçon cimente le sol d~une cuisine de ferme de 4,20 m de long et 3,75 m de large. Il veut le quadriller en un nombre exact de carrés égaux. En utilisant les caractères de divisibilité, dites s’il pourra dessiner des carrés de 10 cm de côté ? de 15 cm Combien en dessinera-t-il ?

 

9.   On pave une cuisine carrée de 2,8 m de côté, avec des carreaux de 14 cm de côté. Combien faut-il de carreaux sur un côté ? en tout?

 

10.  On veut carreler un mur de cuisine de 2,35 m de long, jusqu’à une hauteur de 1,20  m, avec des carreaux de céramique de 12 cm de côté. Combien en faut-il?

 

CALCUL mental :

 

11.   Les carreaux de 10 cm de côté sont souvent employés; combien en faut-il pour paver:

 -  un couloir de 1  m   de large et 3 m de long ? 

 -  un réduit de 1,2  m de large et 2 m de long ?

-   une salle de bains de 1,5 m de large et 3  m de long ?

-    une cuisine carrée de 2,95 m  de côté ?

-   une salle de 3 m de large et 4,95 m de long?

 

12.  Au-dessus d’un évier, on recouvre le mur de carreaux de 14 cm de côté, sur une surface rectangulaire de 1,4 m sur 84 cm. Combien faut-il de carreaux ? Dites la dépense, à 2,56 € le carreau.

 

13.  Une cuisine carrée est pavée avec des carreaux de 14 cm de côté. Il y en a 24 sur un côté, 15 sur l’autre. a) Combien y a-t-il de carreaux en tout? b) Quelles sont les dimensions de la cuisine ? c) Trouvez de 2 façons la surface de la cuisine.

 

14.  On pave une cuisine de 3,25 m sur 2,75  m  avec des carreaux de 10 cm de côté.

a)  Combien faut-il de carreaux ?

 b) Combien utilisera-t-on de carreaux entiers?

c)  Calculez la surface de la partie couverte de portions de carreaux.

 

15  Au-dessus d’un lavabo, on recouvre le mur sur une longueur de 1,20 m et une hauteur de 60 cm, au moyen de carreaux de 12 cm de  côté, colorés dans la rangée du tour, blancs au centre.

a) Dessinez ce carrelage.

b) Combien faut-il de carreaux au total?

Com­bien de blancs ? Combien de carreaux colo­rés ?

c) Les carreaux colorés coûtent 2,54 € l’un, les blancs 1,30 €  l’un. Dites combien coûte tout le carrelage, le maçon  ayant deman­dé 250 €  pour le travail de pose.

 

 

 

16.  Le sol d’une cuisine de 3,10 m de long et  2,9 m  de large est couvert de carreaux de 10 cm de côté, et une rangée de carreaux est disposée debout contre les murs tout autour du dallage. La pièce ayant 2 portes de 1 m de large, combien a-t-on employé de carreaux ?

 

 

 

 

17.  Une oeuvre de secours a reçu 900 carrés de laine tricotée, de 20 cm de côté chacun. On envisage de les coudre en couvertures de 1,60 m de large et 3 m de long combien faut-il de carrés par couverture ? Combien pourrait-on faire de couvertures ?

On se résout à faire des couvertures de 1,4 m  sur 2,8 m . Combien en fait-on ?