|
Module : |
DOSSIER : 132
- 133 |
|||
|
LOGICIEL Warmaths ; Pour Aide et Formation
Individualisée ; REMEDIATION mise à /NIVEAU : niveau VI |
||||
|
TRAVAUX
NORMATIFS PRIMAIRE / COLLEGE / LYCEE Matière :
MATHEMATIQUES. Niveau VI |
||||
|
|
||||
|
INFO |
||||
|
Les questions relatives à
« ce qu’il faut retenir » , au
« savoir » se reporter aux cours . |
||||
|
INFO COURS :Ce
dossier est utile pour comprendre comment on
pourrait procéder pour évaluer l’aire
d’une surface avec des carreaux de |
||||
|
Dans
les découpages et les carrelages, on ne tient pas compte des surfaces à
découper ou carreler, mais des dimensions à utiliser. |
||||
|
|
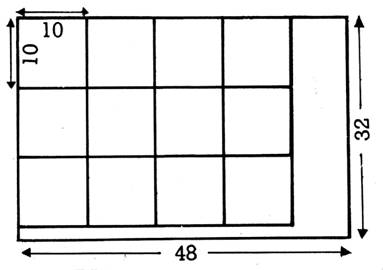
Examinez
la figure ci-contre si, dans la
surface représentée, qui mesure15,36 dm2, on veut prendre ou
placer des carreaux de 1 dm2, on ne peut en prendre ou
placer que « 12 » , à cause des dimensions du rectangle, et des
carreaux indéformables. |
|||
|
Les
découpages entraînent souvent des chutes, ou pertes de matière. Les
carrelages laissent souvent des parties à couvrir avec des morceaux. Un
conseil avant de calculer, faites un croquis du problème posé. |
||||
|
|
||||
|
TRAVAUX : EVALUATION |
||||
|
1.
Dans une feuille de carton de combien
sur la longueur ? sur
la largeur? en
tout ? 2.
Dans une feuille de verre de Combien
en a-t-on en long? en
large ? en
tout ? 3
Un vitrier découpe des vitres carrées de 4 . Dans une
bande de tôle de
5.
Reproduisez le croquis (ci dessous) de
la plaque de verre découpée en vitres égales ; portez-y les dimensions de la
plaque; longueur
6. Dessinez une feuille de carte (carton
léger) du modèle standard 7.
Combien peut-on tirer de carreaux de Pour
répondre à cette question, un élève divise la surface de la feuille par la
surface d’un carreau. Combien trouve-t-il de carreaux ? Expliquez son erreur. 8.
Un maçon cimente le sol d~une cuisine de ferme de 9. On pave une cuisine carrée de 10. On veut carreler un mur de cuisine de CALCUL
mental : 11. Les carreaux de - un couloir de 1 m de large et - un réduit de 1,2 m de large et - une
salle de bains de - une
cuisine carrée de - une
salle de 12. Au-dessus d’un évier, on recouvre le mur de carreaux de 13. Une cuisine carrée est pavée avec des carreaux de 14. On pave une cuisine de a) Combien
faut-il de carreaux ? b) Combien
utilisera-t-on de carreaux entiers? c) Calculez
la surface de la partie couverte de portions de carreaux. 15 Au-dessus d’un lavabo, on recouvre le mur
sur une longueur de a)
Dessinez ce carrelage. b)
Combien faut-il de carreaux au total? Combien
de blancs ? Combien de carreaux colorés ? c)
Les carreaux colorés coûtent 2,54 € l’un, les blancs 1,30 € l’un. Dites combien coûte tout le
carrelage, le maçon ayant demandé 250
€ pour le travail de pose.
16. Le sol d’une cuisine de
17. Une oeuvre de secours a reçu 900 carrés de laine tricotée, de On se résout à faire des couvertures de |
||||
|
|
||||